Γιατί αυτό το συγκρότημα κατοικιών στο Γύθειο είναι υπόδειγμα της φιλοσοφίας του slow living - iefimerida.gr

Γιατί αυτό το συγκρότημα κατοικιών στο Γύθειο είναι υπόδειγμα της φιλοσοφίας του slow living

καναπές καθρέφτης φωτιστικό σαλόνι κατοικία Γύθειο
Άποψη από το σαλόνι μιας εκ των τεσσάρων αυτόνομων κατοικιών του Olea Suites στο Γύθειο, από το Studio Maneo
ΜΑΝΟΣ ΛΕΙΒΑΔΑΡΟΣ

Η αρμονική συνύπαρξη τεσσάρων μικρών εξοχικών κατοικιών στο Γύθειο με μια κοινή φιλοσοφία: το slow living.

Μέσα στη γαλήνη ενός ελαιώνα, με την πέτρα, το χώμα, το φως και τη γήινη παλέτα της μεσογειακής γης, ένα συγκρότημα τεσσάρων αυτόνομων μικρών, εξοχικών κατοικιών δίνει μαθήματα, με τον υποδειγματικό σχεδιασμό του, για το πώς μπορεί ένα αρχιτεκτονικό κτίσμα να ενταχθεί απόλυτα στο φυσικό του περιβάλλον.

ΤΟ ΑΡΘΡΟ ΣΥΝΕΧΙΖΕΙ ΜΕΤΑ ΤΗΝ ΔΙΑΦΗΜΙΣΗ

Το Olea Suites σχεδιάστηκε από το αρχιτεκτονικό γραφείο Studio Maneo για μια έκταση στην πλαγιά του Κούμαρου, κοντά στο Γύθειο, ώστε «να συνδυάζει», όπως εξηγούν οι δημιουργοί, «την ποιότητα διαβίωσης με τη φύση». Ο σχεδιασμός σέβεται το φυσικό τοπίο, ενσωματώνοντας φυσικά υλικά, φυτεμένες στέγες και ελαιόδεντρα.

Η αρχιτεκτονική υπογραμμίζει την απλότητα, την αρμονία και την ηρεμία, προάγοντας την ιδέα του slow living, δηλαδή της αργής, ουσιαστικής διαβίωσης η οποία σέβεται τους ρυθμούς της φύσης και βοηθά τον άνθρωπο να αφουγκραστεί τον τόπο όπου βρίσκεται και να εναρμονιστεί πλήρως με αυτόν και τις συνθήκες που επικρατούν σε αυτόν.

Μια μικρογραφία του Γυθείου σε ένα πέτρινο συγκρότημα τεσσάρων κατοικιών

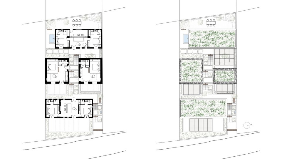
Πρόκειται για τέσσερις ανεξάρτητες μονάδες, χτισμένες αμφιθεατρικά στην πλαγιά του Κούμαρου, κοντά στην παραθαλάσσια πόλη του Γυθείου, στην Ανατολική Μάνη Λακωνίας, ώστε να απολαμβάνουν όλες τη μοναδική θέα στο τοπίο.

ΤΟ ΑΡΘΡΟ ΣΥΝΕΧΙΖΕΙ ΜΕΤΑ ΤΗΝ ΔΙΑΦΗΜΙΣΗ

«Η αρχιτεκτονική πρόταση διαμορφώνεται με σεβασμό στο φυσικό ανάγλυφο και στο τοπίο της περιοχής, ενσωματώνοντας τις κατοικίες στη φυσική κλίση του εδάφους. Η έννοια της ποιοτικής διαβίωσης (slow living) και της ουσιαστικής επαφής με τη φύση διατρέχει οριζόντια το σύνολο του σχεδιασμού - από την επιλογή των υλικών και τις φυτεμένες στέγες, έως την ανάπλαση του περιβάλλοντος χώρου και την επανένταξη των υφιστάμενων ελαιόδεντρων στο τοπίο», εξηγούν η Μαρία Μελησσιανού και ο Ανδριανός Νοβίτσκι, οι δημιουργοί του Studio Maneo.

Η πόλη του Γυθείου, με τα σοκάκια της, αποτέλεσε την έμπνευση για τη δημιουργία μιας μικρογραφίας της κοινότητας, με τα σπιτάκια της να συνυπάρχουν, και με πέτρινα μονοπάτια ανάμεσά τους να τα συνδέουν.

ΤΟ ΑΡΘΡΟ ΣΥΝΕΧΙΖΕΙ ΜΕΤΑ ΤΗΝ ΔΙΑΦΗΜΙΣΗ

«Βασική συνθετική αρχή της πρότασης αποτελεί η χωροθέτηση των κατοικιών και η δημιουργία τυπολογίας, τα οποία επιτυγχάνουν την ανεξαρτησία των ενοίκων και, παράλληλα, την αίσθηση της κοινότητας, παραπέμποντας σε μια μικρογραφία χωριού. Κάθε μονάδα εγκιβωτίζεται σε έναν καθαρό όγκο και δημιουργεί εσωτερικά επιμέρους λειτουργικούς χώρους, οι οποίοι εκτονώνονται αμφιθεατρικά προς τη θέα, ενώ λόγω της υψομετρικής διαφοράς μεταξύ των κατοικιών διατηρείται η ιδιωτικότητα. Στο συγκρότημα έχει προταθεί μια κεντρική κλίμακα, η οποία οδηγεί σε διαφορετικά επίπεδα και στις εισόδους της κάθε κατοικίας. Με αυτόν τον τρόπο ο χρήστης αναβιώνει την περιήγησή του στα σοκάκια της ιστορικής πόλης του Γυθείου. Ο κοινόχρηστος χώρος του οικοπέδου εναρμονίζεται με το φυσικό μεσογειακό περιβάλλον με τη χρήση φυσικών υλικών, φυτεύσεις με ελιές, βότανα, αρωματικά και αγρωστώδη φυτά σε εξωτερικές διαμορφώσεις και φυτεμένα δώματα», λένε οι δημιουργοί.

Πέτρα, ξύλο και γήινη παλέτα: Η αρμονία της μεσογειακής διακόσμησης

Τα υλικά που έχουν επιλεγεί για την κατασκευή αλλά και τη διακόσμηση των τεσσάρων αυτόνομων μικρών κατοικιών έχουν στόχο να εντάξουν ήπια το έργο στην αρχιτεκτονική της περιοχής.

ΤΟ ΑΡΘΡΟ ΣΥΝΕΧΙΖΕΙ ΜΕΤΑ ΤΗΝ ΔΙΑΦΗΜΙΣΗ

«Στις όψεις κυριαρχεί ο σοβάς χρώματος ανοιχτής ώχρας και ξύλινα κουφώματα φυσικού χρώματος, που σε συνδυασμό με την καθαρή ογκοπλασία επιτυγχάνουν την απλότητα στη σύνθεση. Επιπλέον, στον σχεδιασμό είναι αισθητό το στοιχείο της πέτρας, που υποδεικνύει τη τυπολογία των δύο μικρότερων κατοικιών. Κάθε κύρια είσοδος υπογραμμίζεται με εναλλαγή υλικών ανάμεσα σε επένδυση πέτρας και σοβά», εξηγεί το Studio Maneo. 

Minimal και ρουστίκ σε συνομιλία

Το αποτέλεσμα είναι ένας μίνιμαλ σχεδιασμός που έχει όμως ρουστίκ στοιχεία και μεσογειακές αναφορές. Αυτό ισχύει τόσο για τους εξωτερικούς χώρους όσο και για τους εσωτερικούς, που τους χαρακτηρίζει η γαλήνη, μια αίσθηση χαλαρότητας και θετικής ενέργειας που διαχέεται σε κάθε γωνιά.

ΤΟ ΑΡΘΡΟ ΣΥΝΕΧΙΖΕΙ ΜΕΤΑ ΤΗΝ ΔΙΑΦΗΜΙΣΗ

Σε αυτό βοηθούν η ουδέτερη χρωματική παλέτα και τα φυσικά υλικά.

ΤΟ ΑΡΘΡΟ ΣΥΝΕΧΙΖΕΙ ΜΕΤΑ ΤΗΝ ΔΙΑΦΗΜΙΣΗ
ΤΟ ΑΡΘΡΟ ΣΥΝΕΧΙΖΕΙ ΜΕΤΑ ΤΗΝ ΔΙΑΦΗΜΙΣΗ

«Η υλικότητα αποδίδεται με ασβεστοχρώματα και χυτά υλικά, κεραμικά πλακίδια τύπου τερακότα, χτιστά έπιπλα, λινά υφάσματα και ξύλινα στοιχεία, όπως εμφανή δοκάρια και ντουλάπια. Η χρήση φυσικών υλικών και υφών, οι καθαρές γραμμές και η έμφαση στη λειτουργικότητα ενισχύουν την αίσθηση ενός παραδοσιακού αλλά ταυτόχρονα σύγχρονου χώρου. Ο σχεδιασμός των χώρων συνολικά βασίζεται στην απλότητα, στην αρμονία με το φυσικό περιβάλλον και στην άνεση. Το σύνολο προωθεί διακριτικά έναν τρόπο ζωής που βασίζεται στην ηρεμία και στην άνεση, υπονοώντας ότι η πραγματική πολυτέλεια βρίσκεται στη φιλοσοφία της αργής, ουσιαστικής διαβίωσης», καταλήγει το Studio Maneo.

ΤΟ ΑΡΘΡΟ ΣΥΝΕΧΙΖΕΙ ΜΕΤΑ ΤΗΝ ΔΙΑΦΗΜΙΣΗ

Info: studiomaneo.com
Έργο: Olea Suites 
Κατηγορία: Κατοικία 
Τοποθεσία: Γύθειο, Λακωνία 
Τετραγωνικά: 270 τ.μ.
Κατάσταση: Οικοδομική άδεια 
Χρονολογία: Προς ολοκλήρωση 2026 
Αρχιτεκτονική μελέτη: Studio Maneo (Μαρία Μελησσιανού, Ανδριανός Νοβίτσκι)
Στατική μελέτη: Μάνος Μπότσαρης 
Μηχανολογική μελέτη: Κώστας Κορρές 

Ακολουθήστε το στο Google News και μάθετε πρώτοι όλες τις ειδήσεις
Δείτε όλες τις τελευταίες Ειδήσεις από την Ελλάδα και τον Κόσμο, στο 
ΣΧΟΛΙΑΣΜΟΣ
Tο iefimerida.gr δημοσιεύει άμεσα κάθε σχόλιο. Ωστόσο δεν υιοθετούμε τις απόψεις αυτές καθώς εκφράζουν αποκλειστικά τον εκάστοτε σχολιαστή. Σχόλια με ύβρεις διαγράφονται χωρίς προειδοποίηση. Χρήστες που δεν τηρούν τους όρους χρήσης αποκλείονται.

ΔΕΙΤΕ ΕΠΙΣΗΣ

ΠΕΡΙΣΣΟΤΕΡΑ