Σχεδόν πέντε μήνες μετά την έναρξη λειτουργίας της νέας Εθνικής Πινακοθήκης, άρχισε να λειτουργεί και το καφέ της, ακριβώς κάτω από το φουαγιέ, πάνω στον κήπο με το κανάλι νερού και τα διάσπαρτα γλυπτά. Μόνο που δεν φέρει το όνομα «Ιλισός», όπως περιμέναμε…
Ανακοίνωση δεν υπήρξε, ούτε καν στα social media. Μοιάζει με ένα μυστικό που ανακαλύπτει κανείς τυχαία. Ετσι, περπατώντας στη Βασιλέως Κωνσταντίνου, φτάνοντας στην Πινακοθήκη, το βλέμμα με έκπληξη καρφώνεται χαμηλά, στον κήπο. Και αφού ακολουθεί τη γνωστή διαδρομή από το γλυπτό «Σπείρα» του Κώστα Βαρώτσου προς το βάθος του καναλιού που έχει δημιουργηθεί ως υπόμνηση του Ιλισού που κυλούσε από κάτω, διαπιστώνει κανείς ότι ο κήπος έχει γεμίσει με τραπεζάκια. Μια όμορφη αστική εικόνα, ανάμεσα σε γλυπτά.
Ναι, λοιπόν, το καφέ της Πινακοθήκης έχει ανοίξει και ως τώρα το χαίρονται μόνον όσοι το διαπίστωσαν περπατώντας τυχαία στη Βασιλέως Κωνσταντίνου ή κάποιοι επισκέπτες. Και λειτουργεί τις ώρες λειτουργίας της Πινακοθήκης -προς το παρόν. Οταν θα ολοκληρωθούν οι εργασίες στον κήπο και ανοίξουν και οι κάτω πόρτες, θα μπορεί κάποιος να πηγαίνει απευθείας εκεί, σε ωράριο πιο διευρυμένο από αυτό της Πινακοθήκης.

Ως τότε, μπαίνοντας στο φουαγιέ και αφού περάσει κανείς όλους τους ελέγχους για τα πιστοποιητικά εμβολιασμού στην είσοδο, κατεβαίνει τις δύο ξύλινες σκάλες πλάι στις μεγάλες γυάλινες επιφάνειες με το φως να μπαίνει από παντού, μαζί με εικόνες της πόλης και της κυκλοφορίας στον δρόμο. Φτάνει έτσι σε μια μεγάλη αίθουσα, με ελάχιστες παρεμβάσεις: ένας μεγάλος ξύλινος πάγκος με τα σάντουιτς και τα γλυκά που προσφέρονται, τραπεζοκαθίσματα, αραιά τοποθετημένα.
Αναζητήσαμε την επιγραφή «Ιλισός», αφού, όπως έχει ανακοινωθεί και όπως προβλέπει η σύμβαση, αυτό θα είναι το όνομα του καφέ -υπενθυμίζουμε ότι το εστιατόριο που θα λειτουργήσει στον τελευταίο όροφο θα ονομάζεται «Παρθένης», αναφορά στον γνωστό ζωγράφο. Ο Ιλισός όμως ήταν άφαντος -να που το κυριολεκτικό συνάντησε το μεταφορικό.

Μόνο μια ταμπέλα υπάρχει στον τοίχο πάνω από τον πάγκο, που γράφει «Venice» και έχει σήμα έναν γονδολιέρη μέσα σε μπλε φόντο. Από κάτω διαβάζουμε «Veneti» και την επεξήγηση Boutique Catering.
Δεν ξέρουμε αν η ονομασία «Βενετία» προήλθε συνειρμικά από το μικρό τεχνητό κανάλι του κήπου, σε συνδυασμό με την αναφορά στη γνωστή εταιρεία. Μετά από ρεπορτάζ μάθαμε ότι πρόκειται για την ονομασία της θυγατρικής του Βενέτη, που έχει αναλάβει, κατόπιν διαγωνισμού, τη λειτουργία τόσο του καφέ όσο και του εστιατορίου.
Αν και είναι παράβλεψη -με βάση μάλιστα και το κείμενο της σύμβασης- ότι λειτουργεί το καφέ χωρίς το όνομα που έχει συμφωνηθεί, μας διαβεβαίωσαν ότι αυτό θα διορθωθεί άμεσα και θα μπει η σωστή ονομασία.

Πέρα από ροφήματα, προς το παρόν προσφέρονται διάφορα γλυκίσματα, τέσσερις διαφορετικές πίτες και τρία είδη σάντουιτς. Από την προσεχή εβδομάδα αναμένεται να προσφέρονται και σαλάτες, ενώ σταδιακά θα μπουν στο μενού και περισσότερα πιάτα.
Το εστιατόριο -που και πάλι θα λειτουργεί, κατόπιν διαγωνισμού, η εταιρεία Βενέτης, με σεφ τον Εκτορα Μποτρίνι- δεν αναμένεται να λειτουργήσει πριν από τις αρχές του 2022.
Εντύπωση προκαλεί πάντως ότι δεν υπάρχουν έργα τέχνης ή έστω κάποια αντίγραφα στους τοίχους του καφέ. Στο εσωτερικό του καφέ μοιάζει να λησμονείς τη χρήση του χώρου, σε αντίθεση με τον κήπο, όπου τόσο το περίβλημα του κτιρίου όσο και τα γλυπτά σε συνδέουν αμέσως και διαρκώς με την ταυτότητα του κτιρίου.

Υπενθυμίζουμε ότι στις 7 Ιανουαρίου βγήκε στον αέρα η προκήρυξη του ανοιχτού δημόσιου πλειοδοτικού διαγωνισμού για την εκμίσθωση εστιατορίου και αναψυκτηρίου. Ενας ανάδοχος και για τα δύο με ελάχιστο εγγυημένο μηνιαίο μίσθωμα, ενοίκιο, 7.000 ευρώ τον μήνα.
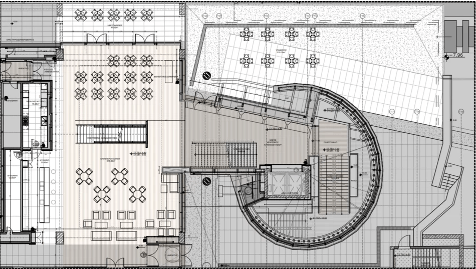
Αξίζει να σημειώσουμε ότι το εστιατόριο καλύπτει έκταση 208,85 τ.μ. και το αναψυκτήριο έχει συνολικά εσωτερικούς χώρους 278,65 τ.μ. και εξωτερικούς χώρους 281,50 τ.μ. Η διάρκεια της σύμβασης είναι για πέντε χρόνια με δυνατότητα παράτασης για άλλα πέντε.
Τόσο το καφέ όσο και το εστιατόριο δεν έχουν δυνατότητα ζεστής κουζίνας, δηλαδή δημιουργίας εξαρχής των γευμάτων, λόγω των προβλεπόμενων υποδομών: «δεν προβλέπονται κουζίνες, ούτε αεραγωγοί απαγωγής ατμών/οσμών (hoods). Κατά συνέπεια, εάν επιθυμείται η χρήση φούρνων αναθέρμανσης ή ψησίματος, αυτοί θα πρέπει να είναι πιστοποιημένοι για χρήση χωρίς απαγωγή, με συλλογή και ανακύκλωση των ατμών/οσμών/λιπών. Επίσης μαγειρικές εστίες, φριτέζες κ.λπ. απαγορεύονται, καθώς απαιτούν αναγκαστικά απαγωγή», ανέφερε η σχετική προκήρυξη.
Το αναψυκτήριο έχει συνολικά εσωτερικούς χώρους 278,65 τ.μ. και εξωτερικούς χώρους 281,50 τ.μ. Επίσης, έχει τη δυνατότητα επέκτασης της λειτουργίας του στον ημιυπαίθριο χώρο κάτω από την πιλοτή 47,80 τ.μ. και στον υπαίθριο χώρο 233,70 τ.μ.
Το εστιατόριο καλύπτει συνολικά 208,85 τ.μ. και βρίσκεται στον τρίτο όροφο του Β’ κτιρίου της Εθνικής Πινακοθήκης, προσφέροντας πανοραμική θέα της Αθήνας από Υμηττό, Ακρόπολη και Λυκαβηττό -η ώρα της δύσης του ηλίου είναι μαγική, μια αστική εμπειρία.