Από το Οικονομικών άρχισε το «ξεκαθάρισμα» υπαλλήλων – Καταργούνται 1.157 θέσεις [πίνακες] - iefimerida.gr

Από το Οικονομικών άρχισε το «ξεκαθάρισμα» υπαλλήλων – Καταργούνται 1.157 θέσεις [πίνακες]

ΓΙΩΡΓΟΣ ΠΑΠΠΟΥΣ

Ο υπουργός Οικονομικών Γιάννης Στουρνάρας έδωσε το... καλό παράδειγμα στους ομολόγους του, συντάσσοντας τον πρώτο κατάλογο κενών οργανικών θέσεων που πρόκειται να καταργηθούν δια παντός.

Με Κοινή Υπουργική Απόφαση ορίζεται ότι από τις 2.307 κενές θέσεις δημοσίου δικαίου που προκύπτουν με βάση το οργανόγραμμα του υπουργείου Οικονομικών, θα πρέπει να διατηρηθούν μόνο οι 1.150- με την... ελπίδα ότι κάποια στιγμή θα πληρωθούν- ενώ οι υπόλοιπες 1.157 πρέπει να καταργηθούν.

Εξ αυτών, οι 836 είναι θέσεις που προορίζονται για υπαλλήλους Υποχρεωτικής Εκπαίδευσης (κυρίως νυχτοφύλακες, επιμελητές, καθαρίστριες), οι 267 για Δευτεροβάθμιας Εκπαίδευσης, οι 53 για Τεχνολογικής Εκπαίδευσης και μόνο 1 για υπαλλήλους Πανεπιστημιακής Εκπαίδευσης.

Αναλυτικά η απόφαση

Κ.Υ.Α. αρ. πρωτ: Δ6Α 1171620 ΕΞ 12.12.2012

Κατάργηση και διατήρηση κενών οργανικών θέσεων πολιτικού προσωπικού με σχέση εργασίας δημοσίου δικαίου που υπερβαίνουν κατά κατηγορία, κλάδο και ειδικότητα το 60% των θέσεων που προβλέπονται από τον οργανισμό του Υπουργείου Οικονομικών σύμφωνα με τις διατάξεις της παρ. 1α του άρθρου 33 του Ν. 4024/2011, όπως ισχύει

Αθήνα, 12 Δεκεμβρίου 2012

Αρ. Πρωτ: Δ6Α 1171620 ΕΞ2012

(ΦΕΚ Β '3387/18.12.2012)

ΕΛΛΗΝΙΚΗ ΔΗΜΟΚΡΑΤΙΑ

ΥΠΟΥΡΓΕΙΟ ΟΙΚΟΝΟΜΙΚΩΝ

ΓΕΝΙΚΗ ΓΡΑΜΜΑΤΕΙΑ ΔΗΜΟΣΙΩΝ ΕΣΟΔΩΝ

1.ΓΕΝΙΚΗ ΔΙΕΥΘΥΝΣΗ ΔΙΟΙΚΗΤΙΚΗΣ ΥΠΟΣΤΗΡΙΞΗΣ

α) ΔΙΕΥΘΥΝΣΗ ΟΡΓΑΝΩΣΗΣ ΤΜΗΜΑΤΑ Α - Β'

Ταχ. Δ/νση: Λεωχάρους 2

Ταχ. Κώδικας: 10184 ΑΘΗΝΑ

Τηλ.: 210 3222386

Fax: 210 3230829

β)ΔΙΕΥΘΥΝΣΗ ΔΙΟΙΚΗΤΙΚΟΥ (Δ1)

ΤΜΗΜΑ Γ'

γ) ΔΙΕΥΘΥΝΣΗ ΠΡΟΣΩΠΙΚΟΥ Δ.Ο.Υ. (Δ2)

ΤΜΗΜΑ Α'

2.ΓΕΝ. Δ/ΝΣΗ ΤΕΛΩΝΕΙΩΝ ΚΑΙ Ε.Φ.Κ.

Δ/ΝΣΗ ΠΡΟΣΩΠΙΚΟΥ ΤΕΛΩΝΕΙΩΝ (Δ3)

ΤΜΗΜΑ Α'

ΚΟΙΝΗ ΑΠΟΦΑΣΗ

ΟΙ ΥΠΟΥΡΓΟΙ

ΟΙΚΟΝΟΜΙΚΩΝ

ΔΙΟΙΚΗΤΙΚΗΣ ΜΕΤΑΡΡΥΘΜΙΣΗΣ ΚΑΙ ΗΛΕΚΤΡΟΝΙΚΗΣ ΔΙΑΚΥΒΕΡΝΗΣΗΣ

ΕΠΕΙΓΟΝ

Θέμα: «Κατάργηση και διατήρηση κενών οργανικών θέσεων πολιτικού προσωπικού με σχέση εργασίας δημοσίου δικαίου που υπερβαίνουν κατά κατηγορία, κλάδο και ειδικότητα το 60% των θέσεων που προβλέπονται από τον οργανισμό του Υπουργείου Οικονομικών σύμφωνα με τις διατάξεις της παρ. 1α του άρθρου 33 του Ν. 4024/2011, όπως ισχύει»

Έχοντας υπόψη:

1. Τις διατάξεις:

α) της παρ. 1α του άρθρου 33 του Ν.4024/2011 (Α' 226) «Συνταξιοδοτικές ρυθμίσεις, ενιαίο μισθολόγιο - βαθμολόγιο, εργασιακή εφεδρεία και άλλες διατάξεις εφαρμογής του μεσοπρόθεσμου πλαισίου δημοσιονομικής στρατηγικής  2012-2015», όπως ισχύει.

β) του π.δ. 185/2009 (Α' 213) «Ανασύσταση του Υπουργείου Οικονομικών, συγχώνευση του Υπουργείου Οικονομίας και Οικονομικών με τα Υπουργεία Ανάπτυξης και Εμπορικής Ναυτιλίας, Αιγαίου και Νησιωτικής Πολιτικής και μετονομασία του σε «Υπουργείο Οικονομίας, Ανταγωνιστικότητας και Ναυτιλίας»...» και του π.δ. 189/2009 (Α' 221) «Καθορισμός και ανακατανομή αρμοδιοτήτων των Υπουργείων»

γ) του π.δ. 284/1988 (Α' 218) «Οργανισμός του Υπουργείου Οικονομικών»

δ) την αριθμ. ΔΟΑ/Φ.14/1/οικ.21732/31-10-2011 εγκύκλιο του Υπουργείου Διοικητικής Μεταρρύθμισης και Ηλεκτρονικής Διακυβέρνησης

ε) την παρ. 2 της αριθμ. Δ6Α 1045388 ΕΞ 2012/19-3-2012 (Β' 809) απόφασης του Υπουργού Οικονομικών «Διαπίστωση αυτοδίκαιης κατάργησης κενών οργανικών θέσεων πολιτικού προσωπικού με σχέση εργασίας δημοσίου δικαίου του Υπουργείου Οικονομικών, κατ' εφαρμογή της παρ. 1α του άρθρου 33 του Ν.4024/2011 (ΦΕΚ 226 Α')»

στ) το αριθ. Δ2Α 1052207 ΕΞ 2012/28-3-2012 έγγραφο της Δ/νσης Προσωπικού Δ.Ο.Υ. της Γενικής Διεύθυνσης Διοικητικής Υποστήριξης της Γενικής Γραμματείας Φορολογικών και Τελωνειακών θεμάτων.

ζ) το αριθ. Δ3Α 5018402 ΕΞ 2012/24-4-2012 έγγραφο της Δ/νσης Προσωπικού Τελωνείων της Γενικής Διεύθυνσης Τελωνείων και Ε.Φ.Κ. της Γενικής Γραμματείας Φορολογικών και Τελωνειακών θεμάτων.

η) το αριθ. ΓρΓΓΠ 0000812 ΕΞ 2012/4-7-2012 έγγραφο του Γενικού Γραμματέα της Γενικής Γραμματείας Πληροφοριακών Συστημάτων.

θ) τα αριθ. Δ1Γ 1074367ΕΞ 2012/9-5-2012 και Δ1Γ 1103244ΕΞ 2012/11-7-2012 έγγραφα της Δ/νσης Διοικητικού της Γενικής Διεύθυνσης Διοικητικής Υποστήριξης.

ι) του άρθρου 90 του Κώδικα, που κυρώθηκε με το «άρθρο πρώτο» του π.δ.63/2005 (Α'98), «Κωδικοποίηση της Νομοθεσίας για την Κυβέρνηση και τα Κυβερνητικά Όργανα».

ια) του π.δ. 90/2012 (Α' 144) «Διορισμός Υπουργού και Υφυπουργών»

2. Το γεγονός ότι από τις διατάξεις της παρούσας απόφασης δεν προκαλείται δαπάνη σε βάρος του Κρατικού Προϋπολογισμού.

Αποφασίζουμε:

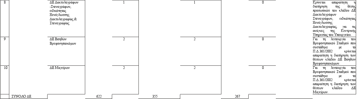
1. Την κατάργηση χιλίων εκατόν πενήντα επτά (1.157) κενών οργανικών θέσεων μόνιμου προσωπικού με σχέση εργασίας δημοσίου δικαίου του Υπουργείου Οικονομικών, που υπερβαίνουν το 60%, όπως αναλυτικά προσδιορίζονται ανά κατηγορία, κλάδο και ειδικότητα των προβλεπόμενων οργανικών θέσεων στον οικείο οργανισμό, όπως εμφανίζονται στον κατωτέρω πίνακα της στήλης 4, καθώς και την διατήρηση χιλίων εκατόν πενήντα (1.150) θέσεων όπως εμφανίζονται στην στήλη 3, κατόπιν ειδικής εμπεριστατωμένης αιτιολογία, ως ακολούθως -κάντε κλικ για μεγέθυνση-:


Από το Οικονομικών άρχισε το «ξεκαθάρισμα» υπαλλήλων – Καταργούνται 1.157 θέσεις [πίνακες] | iefimerida.gr 0

Από το Οικονομικών άρχισε το «ξεκαθάρισμα» υπαλλήλων – Καταργούνται 1.157 θέσεις [πίνακες] | iefimerida.gr 1

Από το Οικονομικών άρχισε το «ξεκαθάρισμα» υπαλλήλων – Καταργούνται 1.157 θέσεις [πίνακες] | iefimerida.gr 2

Από το Οικονομικών άρχισε το «ξεκαθάρισμα» υπαλλήλων – Καταργούνται 1.157 θέσεις [πίνακες] | iefimerida.gr 3

Από το Οικονομικών άρχισε το «ξεκαθάρισμα» υπαλλήλων – Καταργούνται 1.157 θέσεις [πίνακες] | iefimerida.gr 4

Από το Οικονομικών άρχισε το «ξεκαθάρισμα» υπαλλήλων – Καταργούνται 1.157 θέσεις [πίνακες] | iefimerida.gr 5

Από το Οικονομικών άρχισε το «ξεκαθάρισμα» υπαλλήλων – Καταργούνται 1.157 θέσεις [πίνακες] | iefimerida.gr 6

Από το Οικονομικών άρχισε το «ξεκαθάρισμα» υπαλλήλων – Καταργούνται 1.157 θέσεις [πίνακες] | iefimerida.gr 7

Από το Οικονομικών άρχισε το «ξεκαθάρισμα» υπαλλήλων – Καταργούνται 1.157 θέσεις [πίνακες] | iefimerida.gr 8

Από το Οικονομικών άρχισε το «ξεκαθάρισμα» υπαλλήλων – Καταργούνται 1.157 θέσεις [πίνακες] | iefimerida.gr 9


Ακολουθήστε το στο Google News και μάθετε πρώτοι όλες τις ειδήσεις
Δείτε όλες τις τελευταίες Ειδήσεις από την Ελλάδα και τον Κόσμο, στο 
ΣΧΟΛΙΑΣΜΟΣ
Tο iefimerida.gr δημοσιεύει άμεσα κάθε σχόλιο. Ωστόσο δεν υιοθετούμε τις απόψεις αυτές καθώς εκφράζουν αποκλειστικά τον εκάστοτε σχολιαστή. Σχόλια με ύβρεις διαγράφονται χωρίς προειδοποίηση. Χρήστες που δεν τηρούν τους όρους χρήσης αποκλείονται.

ΔΕΙΤΕ ΕΠΙΣΗΣ

ΠΕΡΙΣΣΟΤΕΡΑ