Στριμωγμένο ανάμεσα σε δύο άθλια καταστήματα στο Τόκιο βρίσκεται το δεύτερο στενότερο σπίτι στον κόσμο, που μετράει μόλις 2,5 μέτρα πλάτος.
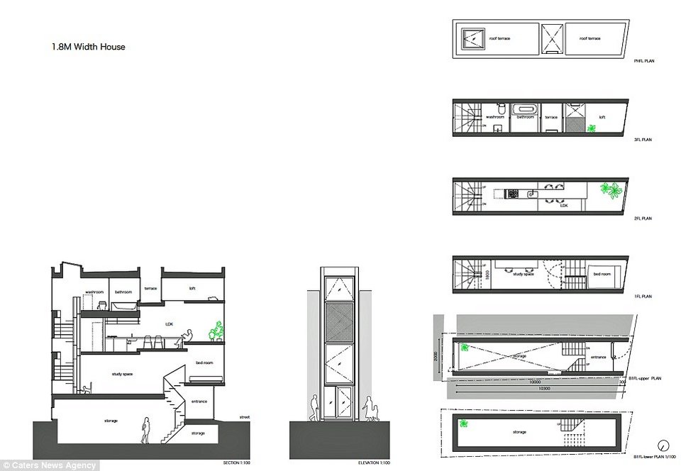
Το κάθετο σπίτι διαθέτει όλες τις ανέσεις ενός κανονικού σπιτιού, κουζίνα, καθιστικό, υπνοδωμάτιο και βεράντα, μοιρασμένες σε τέσσερις ορόφους.
Χτίστηκε μεταξύ 2010 και 2012 από τους σχεδιαστές και τους κατασκευαστές και της YUUA Architects και έχει 2,5 μέτρα πλάτος και 11 μέτρα ύψος.
Βρίσκεται στην περιοχή Θοσιμάκου του Τόκιο και στεγάζει ένα ζευγάρι και τη γάτα τους. Το ακίνητο έχει επίσης παράθυρα από το δάπεδο μέχρι την οροφή, τα οποία δεν προσφέρουν στους ιδιοκτήτες πολλή προστασία της ιδιωτικής ζωής, αλλά ένας εκπρόσωπος για YUUA εξηγεί ότι ήταν μέρος του σχεδιασμού για να κάνουν το σπίτι να φαίνεται μεγαλύτερο από ότι είναι.
Αλλα χαρακτηριστικά της οικονομίας χώρου, συμπεριλαμβάνουν τοποθέτηση φωτισμού στους τοίχους αντί για το ταβάνι και ράφια γύρω από τις σκάλες.
Παρά τις μικρές αναλογίες του, το σπίτι δεν είναι το στενότερο στον κόσμο, αφού ένα ακίνητο στη Βαρσοβία της Πολωνία, με πλάτος μόλις 1.22 μέτρα, του έχει κλέψει τη δόξα.
![Ιδιαίτερο: Σπίτι πλάτους μόλις 2,5 μέτρων γίνεται υπόδειγμα - Βολικό και ντιζαϊνάτο [εικόνες] | iefimerida.gr 0](/sites/default/files/styles/in_article/public/archive-files/2abe62d200000578-0-image-a-27_1437579142243.jpg?itok=G609djk0)
![Ιδιαίτερο: Σπίτι πλάτους μόλις 2,5 μέτρων γίνεται υπόδειγμα - Βολικό και ντιζαϊνάτο [εικόνες] | iefimerida.gr 1](/sites/default/files/styles/in_article/public/archive-files/2abe62f700000578-0-image-a-28_1437579142285.jpg?itok=788dM0rF)
![Ιδιαίτερο: Σπίτι πλάτους μόλις 2,5 μέτρων γίνεται υπόδειγμα - Βολικό και ντιζαϊνάτο [εικόνες] | iefimerida.gr 2](/sites/default/files/styles/in_article/public/archive-files/2abe62e000000578-0-image-a-32_1437579142341_0.jpg?itok=ymE2IJ1D)
![Ιδιαίτερο: Σπίτι πλάτους μόλις 2,5 μέτρων γίνεται υπόδειγμα - Βολικό και ντιζαϊνάτο [εικόνες] | iefimerida.gr 3](/sites/default/files/styles/in_article/public/archive-files/2abe62a500000578-0-image-a-30_1437579142324.jpg?itok=WELg6JMP)
![Ιδιαίτερο: Σπίτι πλάτους μόλις 2,5 μέτρων γίνεται υπόδειγμα - Βολικό και ντιζαϊνάτο [εικόνες] | iefimerida.gr 4](/sites/default/files/styles/in_article/public/archive-files/2abe62b100000578-0-image-a-33_1437579142353.jpg?itok=4zrFL17q)
![Ιδιαίτερο: Σπίτι πλάτους μόλις 2,5 μέτρων γίνεται υπόδειγμα - Βολικό και ντιζαϊνάτο [εικόνες] | iefimerida.gr 5](/sites/default/files/styles/in_article/public/archive-files/2abe641d00000578-0-image-a-25_1437579142051.jpg?itok=Ci6919uE)
![Ιδιαίτερο: Σπίτι πλάτους μόλις 2,5 μέτρων γίνεται υπόδειγμα - Βολικό και ντιζαϊνάτο [εικόνες] | iefimerida.gr 6](/sites/default/files/styles/in_article/public/archive-files/2abe642200000578-0-image-a-31_1437579142338.jpg?itok=QwuFtTyB)
![Ιδιαίτερο: Σπίτι πλάτους μόλις 2,5 μέτρων γίνεται υπόδειγμα - Βολικό και ντιζαϊνάτο [εικόνες] | iefimerida.gr 7](/sites/default/files/styles/in_article/public/archive-files/2abe62be00000578-0-image-a-26_1437579142235.jpg?itok=gNmKLMzz)
![Ιδιαίτερο: Σπίτι πλάτους μόλις 2,5 μέτρων γίνεται υπόδειγμα - Βολικό και ντιζαϊνάτο [εικόνες] | iefimerida.gr 8](/sites/default/files/styles/in_article/public/archive-files/2abe62c900000578-0-image-a-29_1437579142311.jpg?itok=TzWOuqPj)