Η εκκλησία που μετατράπηκε σε ένα από τα ωραιότερα σπίτια του κόσμου -Μίνιμαλ ντιζάιν στον άλλοτε χώρο προσευχής [εικόνες] - iefimerida.gr

Η εκκλησία που μετατράπηκε σε ένα από τα ωραιότερα σπίτια του κόσμου -Μίνιμαλ ντιζάιν στον άλλοτε χώρο προσευχής [εικόνες]

NEWSROOM IEFIMERIDA.GR

Μπορεί μια εκκλησία να γίνει ένα πανέμορφο, πολυτελές και σύγχρονο σπίτι; Την απάντηση έδωσε ο αρχιτέκτονας Τζέραρντ Γκέριτσεν σε μια παλιά εκκλησία στην Ολλανδία.

Πιο συγκεκριμένα, η χριστιαννική εκκλησία του Αγίου Ιακώβου κατασκευασμένη το μακρινό 1870 που βρίσκεται στην Ουτρέχτη μετατράπησε σε μια κατοικία που θα ήθελαν πολλοί.
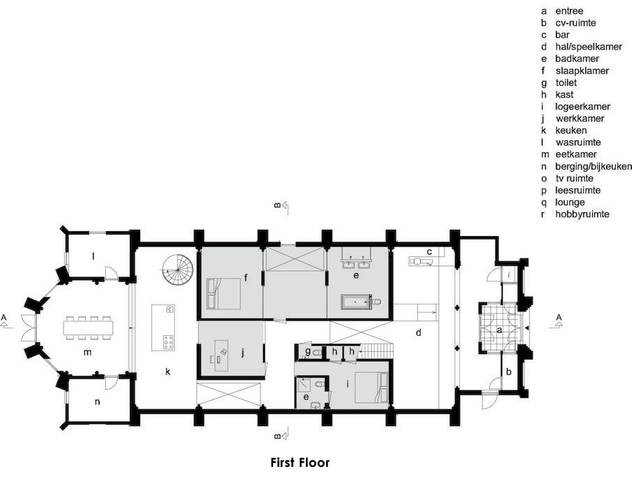
Κατάφερε να κάνει όλους τους χώρους λειτουργικούς, να έχει φυσικό φωτισμό το νέο σπίτι, ενώ επέλεξε το εξωτερικό μέρος του σπιτιού να παραμείνει ως είχε όταν λειτουργούσε ως εκκλησία με τα ίδια παράθυρα που είχαν τοποθετηθεί το 1911.

Έχει επιφάνεια 475 τετραγωνικά μέτρα, δύο κήποι συνολικής έκτασης 250 τετραγωνικών μέτρων, μπαρ, εσωτερικό ασανσέρ και φυσικά μοναδικός σχεδιασμός. Το «The Residential Church XL» όπως ονομάζεται το μοναδικό αυτό σπίτι, βρίσκεται σε δημοπρασία και έχει κοστολογηθεί περίπου στα 2,5 εκατομμύρια ευρώ,

Η εκκλησία που μετατράπηκε σε ένα από τα ωραιότερα σπίτια του κόσμου -Μίνιμαλ ντιζάιν στον άλλοτε χώρο προσευχής [εικόνες] | iefimerida.gr 0
Η εκκλησία που μετατράπηκε σε ένα από τα ωραιότερα σπίτια του κόσμου -Μίνιμαλ ντιζάιν στον άλλοτε χώρο προσευχής [εικόνες] | iefimerida.gr 1
Η εκκλησία που μετατράπηκε σε ένα από τα ωραιότερα σπίτια του κόσμου -Μίνιμαλ ντιζάιν στον άλλοτε χώρο προσευχής [εικόνες] | iefimerida.gr 2
Η εκκλησία που μετατράπηκε σε ένα από τα ωραιότερα σπίτια του κόσμου -Μίνιμαλ ντιζάιν στον άλλοτε χώρο προσευχής [εικόνες] | iefimerida.gr 3
Η εκκλησία που μετατράπηκε σε ένα από τα ωραιότερα σπίτια του κόσμου -Μίνιμαλ ντιζάιν στον άλλοτε χώρο προσευχής [εικόνες] | iefimerida.gr 4
Η εκκλησία που μετατράπηκε σε ένα από τα ωραιότερα σπίτια του κόσμου -Μίνιμαλ ντιζάιν στον άλλοτε χώρο προσευχής [εικόνες] | iefimerida.gr 5
Η εκκλησία που μετατράπηκε σε ένα από τα ωραιότερα σπίτια του κόσμου -Μίνιμαλ ντιζάιν στον άλλοτε χώρο προσευχής [εικόνες] | iefimerida.gr 6
Η εκκλησία που μετατράπηκε σε ένα από τα ωραιότερα σπίτια του κόσμου -Μίνιμαλ ντιζάιν στον άλλοτε χώρο προσευχής [εικόνες] | iefimerida.gr 7
Η εκκλησία που μετατράπηκε σε ένα από τα ωραιότερα σπίτια του κόσμου -Μίνιμαλ ντιζάιν στον άλλοτε χώρο προσευχής [εικόνες] | iefimerida.gr 8
Η εκκλησία που μετατράπηκε σε ένα από τα ωραιότερα σπίτια του κόσμου -Μίνιμαλ ντιζάιν στον άλλοτε χώρο προσευχής [εικόνες] | iefimerida.gr 9
Η εκκλησία που μετατράπηκε σε ένα από τα ωραιότερα σπίτια του κόσμου -Μίνιμαλ ντιζάιν στον άλλοτε χώρο προσευχής [εικόνες] | iefimerida.gr 10
Η εκκλησία που μετατράπηκε σε ένα από τα ωραιότερα σπίτια του κόσμου -Μίνιμαλ ντιζάιν στον άλλοτε χώρο προσευχής [εικόνες] | iefimerida.gr 11
Η εκκλησία που μετατράπηκε σε ένα από τα ωραιότερα σπίτια του κόσμου -Μίνιμαλ ντιζάιν στον άλλοτε χώρο προσευχής [εικόνες] | iefimerida.gr 12
Η εκκλησία που μετατράπηκε σε ένα από τα ωραιότερα σπίτια του κόσμου -Μίνιμαλ ντιζάιν στον άλλοτε χώρο προσευχής [εικόνες] | iefimerida.gr 13
Η εκκλησία που μετατράπηκε σε ένα από τα ωραιότερα σπίτια του κόσμου -Μίνιμαλ ντιζάιν στον άλλοτε χώρο προσευχής [εικόνες] | iefimerida.gr 14
Ακολουθήστε το στο Google News και μάθετε πρώτοι όλες τις ειδήσεις
Δείτε όλες τις τελευταίες Ειδήσεις από την Ελλάδα και τον Κόσμο, στο 
ΔΙΑΒΑΣΤΕ ΠΕΡΙΣΣΟΤΕΡΑ Εκκλησία σπίτι Ολλανδία Ουτρέχτη
ΣΧΟΛΙΑΣΜΟΣ
Tο iefimerida.gr δημοσιεύει άμεσα κάθε σχόλιο. Ωστόσο δεν υιοθετούμε τις απόψεις αυτές καθώς εκφράζουν αποκλειστικά τον εκάστοτε σχολιαστή. Σχόλια με ύβρεις διαγράφονται χωρίς προειδοποίηση. Χρήστες που δεν τηρούν τους όρους χρήσης αποκλείονται.

ΔΕΙΤΕ ΕΠΙΣΗΣ

ΠΕΡΙΣΣΟΤΕΡΑ